Скруббер СВ-Кк
Скрубберы Вентури СВ-Кк.
Предназначены для очистки нетоксичных и невзрывоопасных газов от частиц пыли, не склонных к образованию отложений.
Скруббер Вентури компонуется из трубы Вентури (с регулируемым сечением горловины) и отдельно стоящего (одного или двух) центробежного сепаратора с коническим завихрителем. Для регулировки сечения горловины установлен эллиптический обтекатель. Орошающая жидкость подается в конфузор с помощью форсунок, равномерно распределенных по периметру конфузора.
Материальное исполнение - углеродистая сталь.
Вид климатического исполнения - У1 по ГОСТ 15150-69. Относятся к группе несгораемых изделий; предназначены для установки в помещениях категории Г и Д по СНиП 2.09.02-85.
Условное обозначение
С - скруббер; В - Вентури; Кк - кольцевой контактный канал (кольцевое сечение горловины);
цифра 2 после букв - тип орошения (форсуночное);
следующие цифры - площадь поверхности контактной зоны (м);
01 и 02 - модификации, определяемые исполнением узла каплеулавливания.
|
Температура очищаемых газов, °С |
до 400 |
|
Концентрация взвешенных частиц на входе, г/м3 |
до 10 |
|
Гидравлическое сопротивление, кПа |
4-12 |
|
Удельный расход воды, л/м3 |
0,5-3,5 |
Комплект поставки. Скруббер - максимально укрупненными блоками с ответными фланцами.
Технические характеристики скрубберов Вентури СВ-Кк
|
Типоразмер скруббера |
Производительность, тыс. м3/час |
Ход обтека- теля, мм |
Расход жидкости, м3/час |
Количество |
Масса,кг |
|
|
на оро- шение трубы |
на промывку |
|||||
|
СВ-Кк-2-0,108-01 |
50-80 |
150 |
65 |
15 |
1 |
9000 |
|
СВ-Кк-2-0,108-02 |
80-120 |
270 |
100 |
15 |
1 |
11000 |
|
СВ-Кк-2-0,220-01 |
120-180 |
270 |
150 |
15 |
1 |
18000 |
|
СВ-Кк-2-0,220-02 |
160-240 |
370 |
200 |
15 |
2 |
20000 |
|
СВ-Кк-2-0,475-01 |
240-340 |
350 |
300 |
15 |
2 |
31000 |
|
СВ-Кк-2-0,660-01 |
340-500 |
400 |
400 |
15 |
2 |
40000 |
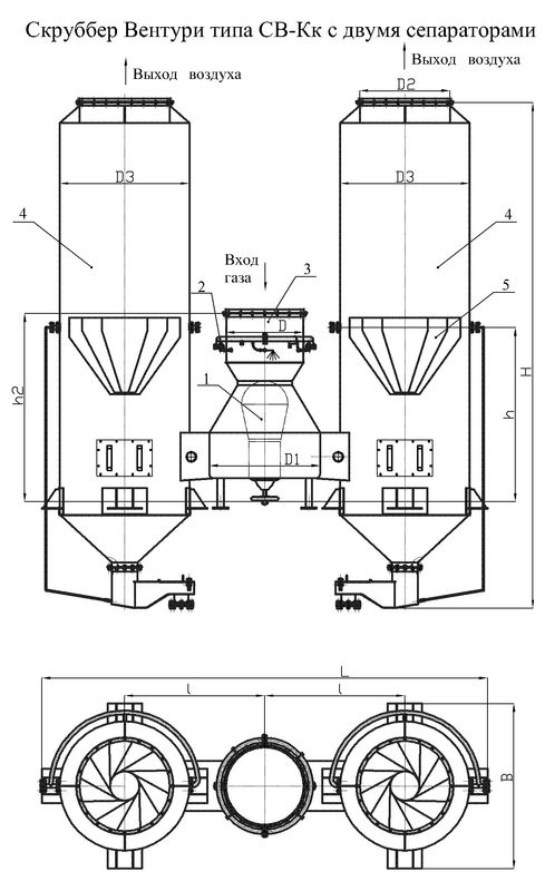
Габаритные размеры скрубберов Вентури СВ-Кк
|
Наименование |
Н |
h |
h1 |
h2 |
D |
D2 |
L |
l |
В |
|
СВ-Кк-2-0,108-01 |
12500 |
5450 |
3310 |
4560 |
1600 |
1360 |
4220 |
2500 |
2215 |
|
СВ-Кк-2-0,108-02 |
14200 |
6000 |
3210 |
4460 |
1800 |
1360 |
4420 |
2700 |
2640 |
|
СВ-Кк-2-0,220-01 |
16400 |
6950 |
4040 |
5445 |
2000 |
2000 |
5300 |
3000 |
3120 |
|
СВ-Кк-2-0,220-02 |
14200 |
6000 |
4035 |
5445 |
2400 |
1666 |
8050 |
2800 |
2640 |
|
СВ-Кк-2-0,475-01 |
16400 |
6950 |
4070 |
5480 |
3000 |
2000 |
9400 |
3500 |
3120 |
|
СВ-Кк-2-0,660-01 |
18600 |
8420 |
5010 |
6420 |
3400 |
2380 |
10400 |
3900 |
3405 |

1- Эллиптический обтекатель, 2 - система орошения, 3 – Труба Вентури,
4 – центробежный сепаратор, 5 – конический завихритель.

1- Эллиптический обтекатель, 2 - система орошения, 3 – Труба Вентури,
4 – центробежный сепаратор, 5 – конический завихритель.